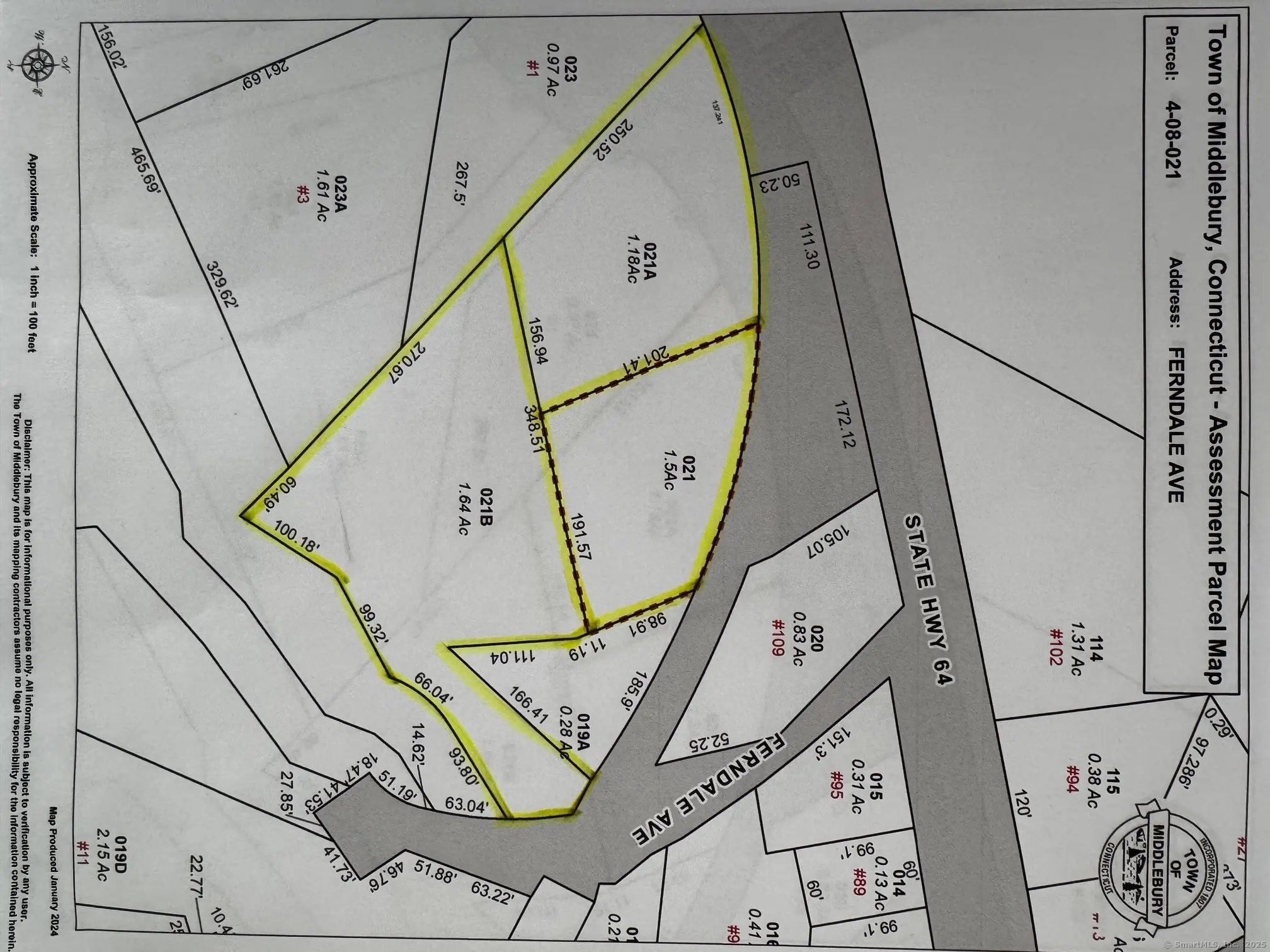
About Ferndale Avenue
For Sale: Unique Development Opportunity Offering a rare opportunity to acquire a three-lot subdivision in Middlebury. This property consists of three separate parcels that must be sold together. While previously approved, buyers are responsible for verifying the current status of approvals and conducting their own due diligence. The site presents some challenges due to significant ledge, which may require blasting. However, water and sewer connections are available in the street, adding convenience for development. A promising opportunity for investors, builders, or developers looking to create something special. Serious inquiries only. I'm working on getting the subdivision maps. Agents Please do not let your clients walk this property alone. Thank you
Features of Ferndale Avenue
| MLS® # | 24084578 |
|---|---|
| Price | $75,000 |
| Acres | 1.64 |
| Type | Lots and Land For Sale |
| Sub-Type | Residential Land |
| Status | Under Contract |
Community Information
| Address | Ferndale Avenue |
|---|---|
| Area | N/A |
| City | Middlebury |
| County | New Haven |
| State | Connecticut |
| Zip Code | 06762 |
Amenities
| Utilities | Cable Available, Electric Available, Underground Required |
|---|---|
| Is Waterfront | No |
| Waterfront | Not Applicable |
| Has Pool | No |
Interior
| Fireplace | No |
|---|---|
| Has Basement | No |
Exterior
| Lot Description | Approved Subdivision, Lightly Wooded, Rocky, Sloping Lot, On Cul-De-Sac |
|---|
School Information
| Elementary | Per Board of Ed |
|---|---|
| High | Per Board of Ed |
Additional Information
| Date Listed | April 3rd, 2025 |
|---|---|
| Days on Market | 6 |
| Zoning | R40 |
| RE / Bank Owned | No |
Listing Details
| Office | Regency Real Estate, LLC |
|---|
